Treballs

realitzats

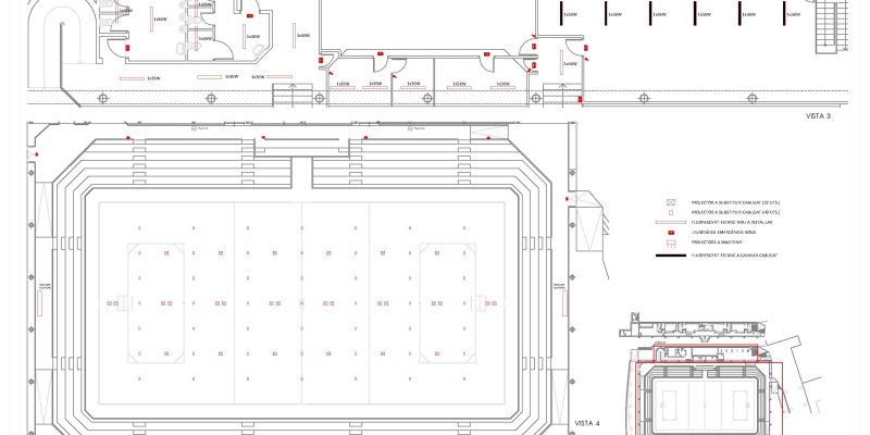
Reforma dels armaris i instal·lació elèctrica del Pavelló Olimpic de l'Ateneu Agrícola. Client: Ajuntament de Sant Sadurní d'Anoia

Sistema de supervisió de consums elèctrics de l'edifici del carrer Londres de la Diputació de Barcelona amb EcoStruxure Power Monitoring Expert de Schneider Electric. Client: Elecnor